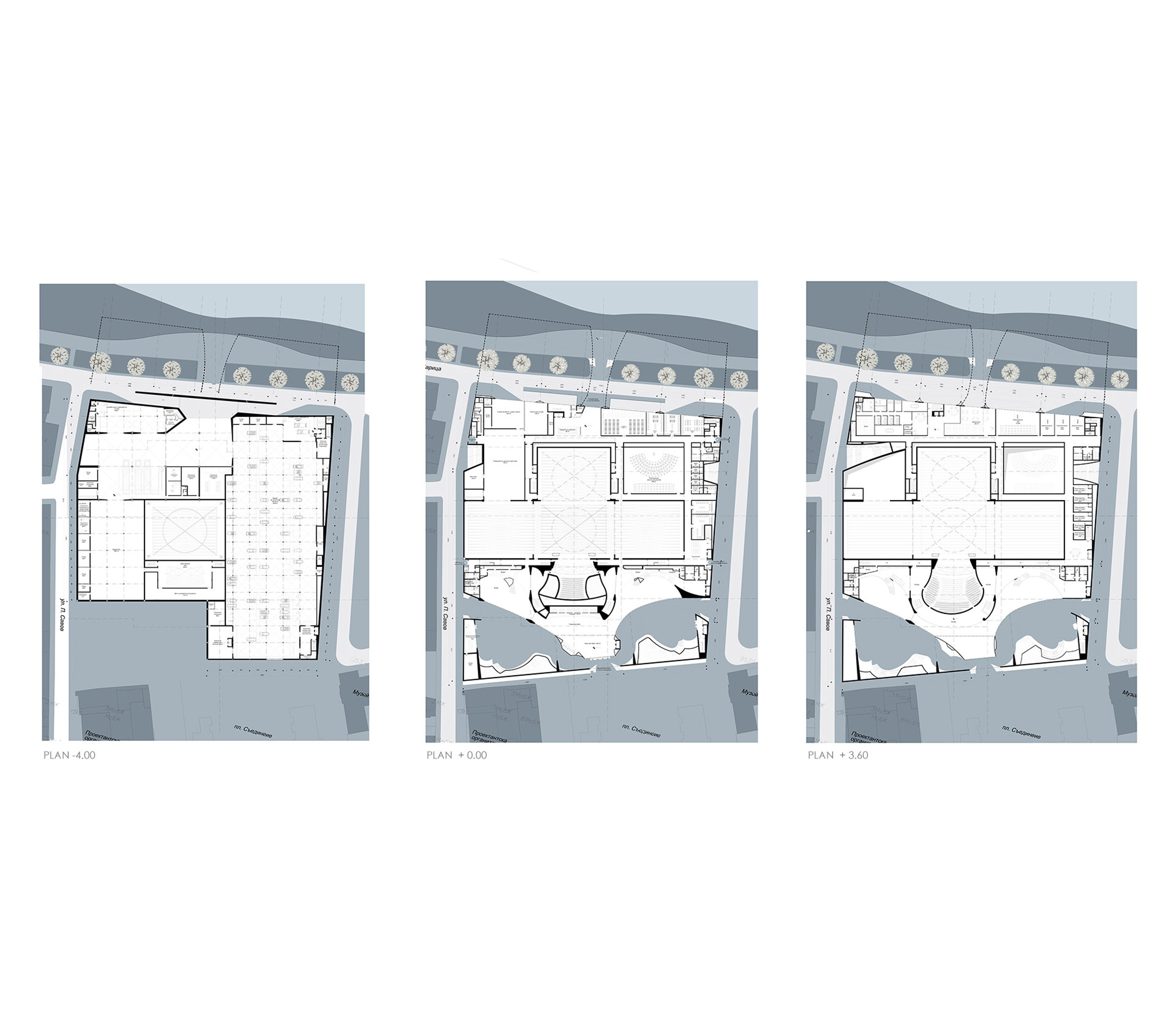
Opera is a theatrical art form in which music has a leading role and the theater is the place where anything is possible. The place where illusions are made. this is the building in which two extremes - reality and illusion - collide, mix and pass unnoticed.
Exactly such a border is the space behind the “Suedinenie” square. On one side of it the gentle, harmonious river and on the other the rough, hard earth. Furthermore, the monument of the union, which is located in the square in front of the building, through its forms expresses the integration of the two beginnings – that of the male and the female.
The project draws inspiration exactly from these metaphors. Located on a kind of border line, the terrain is a weak zone, a place where the female dominates over the male, deforms it, and in this way, on the surface of reality, another world is revealed, an unknown world - the world of dreams. Anyone can look into it but first he has to lose himself, forget his reality and let his dreams guide him. A wandering that will take him to a new world.