Къща „ЕНВИ“ в село Брестник е проектирана с акцент върху връзката между човека и природата, като минимизира намесата в околната среда и съхранява усещането за живот сред гората. Въпреки компактните си размери, къщата предлага алтернативно разпределение на четири полунива, което осигурява всички необходими пространства за едно семейство. Концепцията е допълнена със стъпаловидна тераса, която свързва обитателите директно с природата.
Къща „ЕНВИ“ е разположена на границата между село Брестник и заобикалящата го от юг гора. В основата на проекта е заложена концепцията за връзка между човека и природата, като целта е да се създаде дом с минимална намеса, който да запази голяма част от съществуващата растителност и усещането за живот сред гората. За постигането на тази цел, стъпката на къщата е сведена до минимум, а самата тя е изтеглена дълбоко в гората, осигурявайки пълно уединение за семейството.
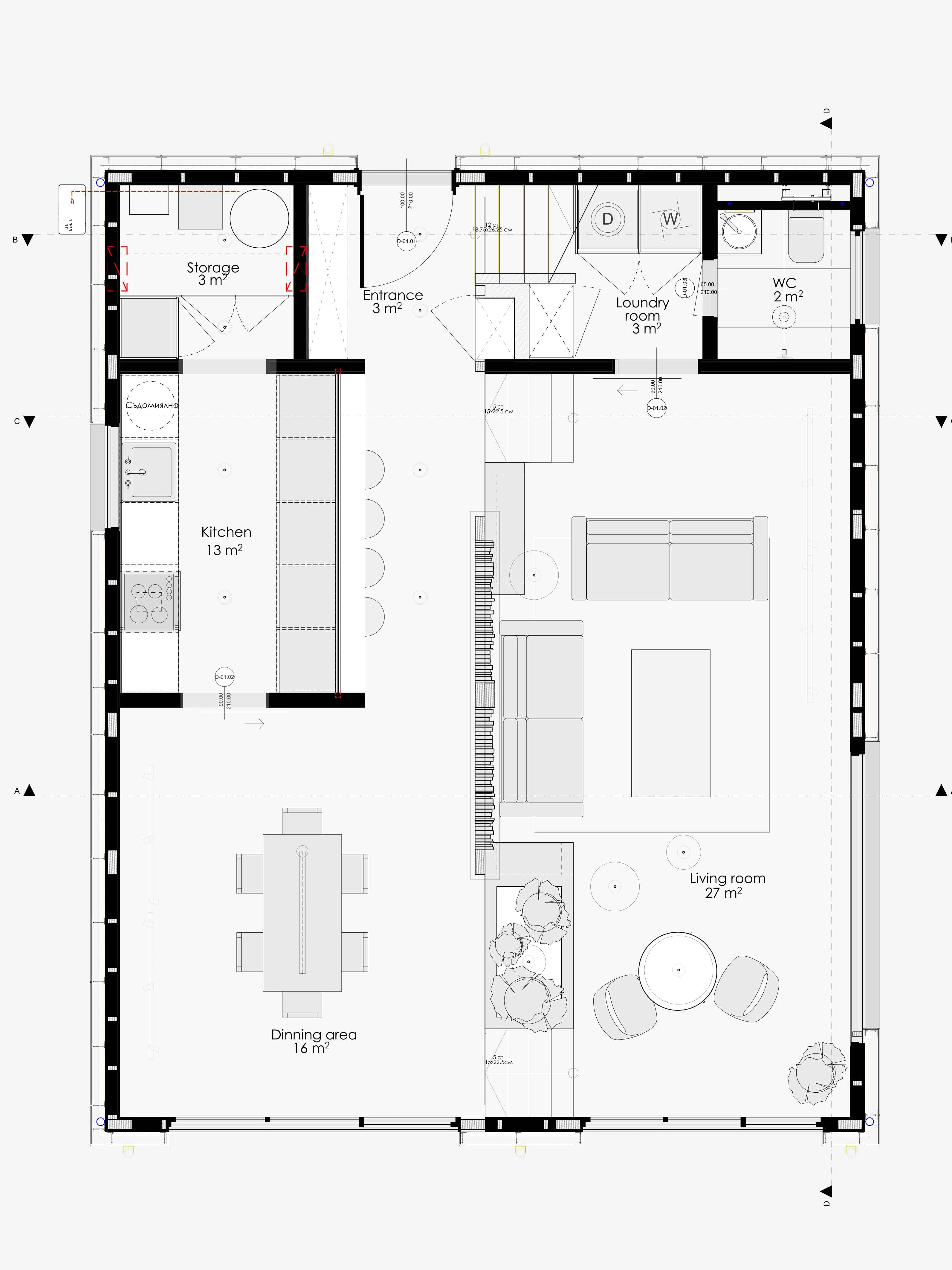
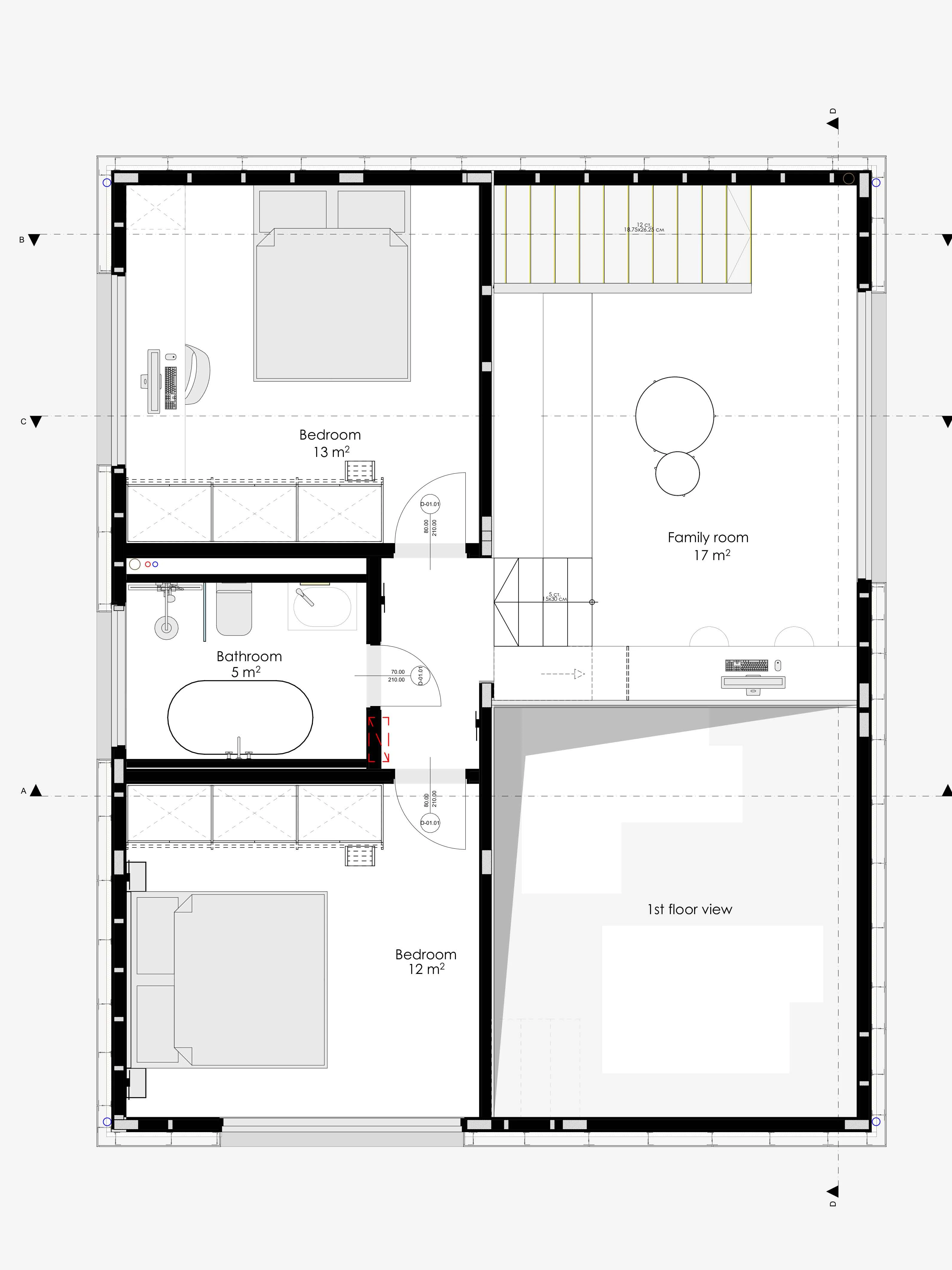
Въпреки малката си площ – само 65 м² стъпка и 130 м² разгъната площ – къщата осигурява всички необходими функционални пространства за едно семейство, включително две дневни, трапезария, кухня, мокро помещение, склад, тоалетна, баня и две спални. Това става възможно благодарение на уникалното формообразуване на къщата, което следва контурите на стръмния терен. Основата е така проектирана, че първото ниво е разделено функционално на две, което води до стъпаловидно развитие и на второто ниво. Чрез иновациите в разпределението на нивата, двуетажната къща всъщност се развива на четири полунива.
Пространствата са разпределени както следва: на кота нула се намира дневната с двойна височина, мокрото помещение и тоалетната. На второ ниво, на 0,75 м над първото, са разположени антрето, трапезарията, кухнята и складът, както и връзката с третото ниво. На трето ниво, на 3 м над първото, е разположена втората дневна, която изпълнява ролята на кино салон, работно пространство и място за четене. Двете дневни са пространствено свързани помежду си. На последното четвърто ниво са отделени спалните и банята.
Като завършек, двете основни концепции – „семейно време“ и връзката човек-природа – са допълнително подсилени чрез стъпаловидната тераса, която, като мост, води всички гости и членове на семейството директно в природата.

















